Leave a Message

Thank you for your message. We will be in touch with you shortly.

See all photos
Dana Schaefer

177 Pemberton Street, Cambridge Townhouse

$1,400,000 177 Pemberton Street, Unit 1, Cambridge, MA 02140

Spacious sun-filled end unit lives like a single-family! Lots of room to spread out with ample space for family, friends, work, and play. This home features a sunken living room leading to a private deck and yard, dining room, and three bedrooms, plus an office/den, three and a half baths, basement storage, and garage parking plus additional off-street space. The dramatic top floor bedroom suite has cathedral ceilings, a skylight, a walk-in closet and a large en-suite bathroom. Built in 1998, this well-run association is 100% owner-occupied. Recent updates include new roofs, exterior painting and solar panels installed on the garages. Fantastic location near both Porter and Davis Squares, the Red line MBTA, Danehy Park, and great local favorites like Formaggio’s, Hi-Rise Bakery, and more. Don’t miss out on this amazing property!

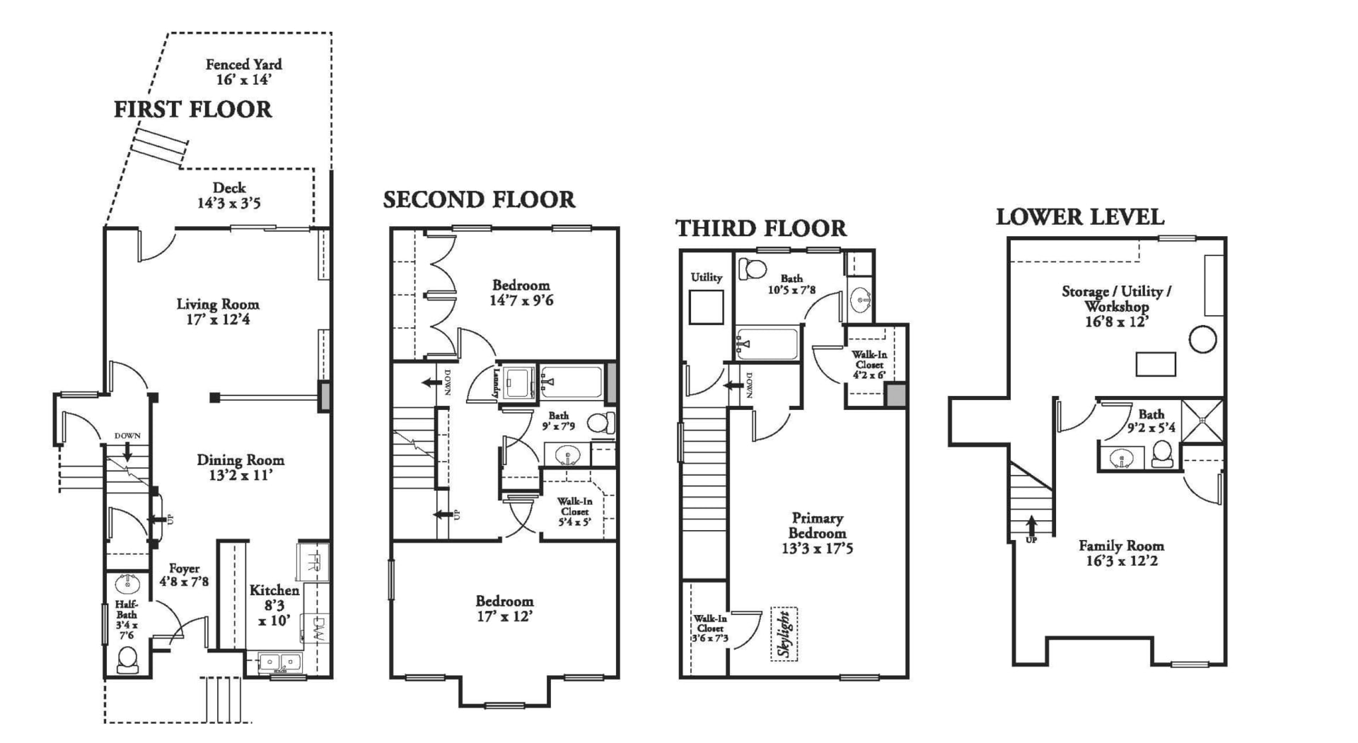
Property Details:

  • Living Area: 2,138 sf
  • 7 Rooms, 3 Bedrooms, 1 Study, 3.5 Baths
  • Year Built: 1998
  • Condo Fee: $443.30/month

Main level and private yard:

  • Once you enter, step inside to a roomy foyer with a tile floor. There is a ½ bath on your left, and a coat closet on the landing. High ceilings and warm oak flooring throughout.
  • Next is the dining room that is open to an efficient kitchen. The kitchen is outfitted with classic painted oak wood cabinetry, granite countertops, a stainless-steel Bosch dishwasher, refrigerator, and a Whirlpool gas stove (2019) with a new hood vent. There are plentiful cabinets including a wonderful pantry.   
  • The living room has a half wall and a step-down, giving it a slight separation from the dining room. There is a glass sliding door with an awning, and a French door that opens to the back yard and wood deck. Custom-built cabinetry with heavy-duty glass shelves rounds out this light-filled space.
  • The rear yard is fenced in and has a wooden deck. The yard has a lovely garden that includes cimicifuga, trillium, peonies, iris, daisies, and primroses. There is a beautiful climbing white rose and a large blooming clethra bush. Shade is provided by a mature Linden tree.

Second Level:

  • There are two nice-sized bedrooms with oak wood flooring and a common full bathroom. The built-in bookshelves in the hallway will come in handy!
  • The laundry is in a hallway closet and the Maytag stack laundry has a gas dryer.
  • The 1st bedroom has two windows and a double closet.
  • The 2nd bedroom has four windows and a walk-in closet
  • Full bath features a combination tub/shower with tile surround, oak cabinetry with Corian countertop, and a linen closet.

Third Level:

  • The entire third level is the primary bedroom suite. At the top of the stairs is a utility closet that houses the York HVAC system for the 2nd and 3rd floors.
  • Entire into the primary suite with cathedral ceilings, a Velux skylight, and a ceiling fan.  This room can accommodate a king-sized bed and has a walk-in closet plus a second closet.
  • The primary en-suite bathroom features a combination tub/shower with tile surround, painted oak wood cabinetry, and a Corian countertop.  

Lower Level:

  • The lower level has a nice-sized room with a closet and a small window. This is a great space for a den, office or playroom. This level has a combination of carpeting and tile floors.
  • There’s a full bathroom with a shower stall, sink and vanity.
  • The utility room houses the HVAC system for the lower level and 1st floor as well as the water heater. There is ample storage including built-in wood cabinetry and a workshop area.

Systems and Exterior:

  • Heating & Cooling: Two York gas-fired forced hot air heating furnaces with cooling. One system is in the basement and heats/cools the basement and 1st floor, and the 2nd system is on the top floor and heats/cools the 2nd and 3rd floor. The condensers were replaced in 2019.
  • Water Heater:  Gas-fired 50-gallon tank (2015).
  • Sump pump.
  • Electrical: Circuit breakers.
  • Siding: Wood painted in 2018.
  • All front stoops were repaired in 2019 and 2020.
  • Roof: Asphalt shingle (new in 2021).
  • Windows: Andersen thermopane.
  • Parking: 1 garage (space #1 on the left side) and 1 off-street parking space (#25).
  • The private backyard has a deck and is enclosed with fencing.

Association and Financials:

  • Condo fee: $443.30/month as of November 2021.
  • Beneficial Interest: 5.375% share
  • Fees include Water & Sewer, Master Insurance, Exterior Maintenance, Landscaping, Trash Removal, and Snow Removal.
  • Capital Reserve Account: $80,000 as of November 2021.
  • Association is self-managed, 20 units, 100% owner-occupied.
  • Taxes: $4,393.51 FY2022 with Residential Exemption.
  • Pet friendly – refer to rules in Master Deed.
  • No smoking is allowed on the premises.
  • Solar panels on the back of the garages were installed in 2017 and the electricity generated offsets the common electricity costs.
  • Over the next 5 years, the association is planning to repave the driveway (2022), replace fence gates (2023) and fencing (2024) and rebuild the back stoops (2025) and these capital improvements are typically financed through Assessments.

Additional Information:

  • The average gas bill is $94/month and the Electric bill $94/month per Eversource. 

  • Sold
    Status
  • 3
    Bedrooms
  • 3.5
    Bathrooms
  • 1998
    Year Built
  • 2,138 Sq.Ft.
    Living Area

Features & Amenities

Area & Lot

  • Status: Sold
  • Living Space: 2,138 Sq.Ft.
  • Total Area: 2,138 Sq.Ft.
  • Type: Townhouse, Condo
  • Year Built: 1998
  • Neighborhood: Cambridge

Interior

  • Total Bedrooms: 3
  • Total Bathrooms: 3.5
  • Full Bathrooms: 3
  • Half Bathrooms: 1

Exterior & Building

  • Stories: 3
  • Garage Space: 1

Financial

  • Sales Price: $1,400,000
View Virtual Tour
Property Insight

“Sold $1,400,000 ”

177 Pemberton Street, Cambridge Townhouse

The Neighborhood:
Cambridge

A unique cultural community that blends old and new.

Learn More Cambridge

Work With Us

Dana Schaefer is a leading real estate agent in Cambridge and Greater Boston. She has helped hundreds of buyers find their dream home in Massachusetts.
Contact Us